Оставьте свой номер телефона и мы перезвоним вам

Закрыть
 

Нажимая кнопку "Отправить", вы принимаете условия обработки персональных данных

Трансинжиниринг

Ваш город: Не определен

 

АдресРаботаем по всей России

ГрафикРежим работы: ПН-ПТ с 8:00 до 17:00

E-mailsale@k-ti.ru

 

8 800 551-77-47

Звонок по России бесплатный

Написать в Whatsapp
Заказать звонок
 
Меню
 
     
 

Трансинжиниринг / Продукция / Ленточные конвейеры / Комплектующие для ленточного конвейера / Натяжные станции для ленточного конвейера

Натяжные станции для ленточного конвейера в Рязани

 

Применение:

  • Ленточный конвейер

Подробную информацию о товаре и условиях сотрудничества узнавайте у наших специалистов по телефону8 800 551-77-47.

Есть вопросы? Звони!

Тел:8 800 551-77-47

Звонок по России бесплатный
 
 
 
 
 
 
 

Описание

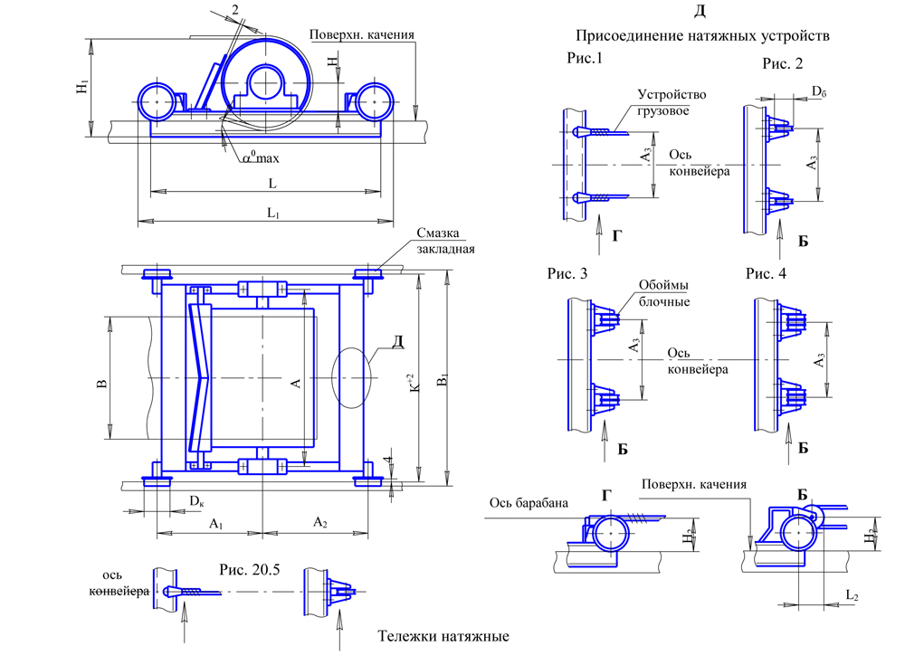
Натяжные устройства рассматриваемых конвейеров делятся на два типа: винтовые и грузовые.

Грузовые натяжные устройства делятся на грузовые тележечные и грузовые вертикальные (рамные). Каждое из названных натяжных устройств состоит из натяжной тележки (или натяжной рамы) и грузового устройства.

Грузовые устройства могут быть без полиспаста, с полиспастом или грузолебедочные.  Выбор типа натяжного устройства зависит от длины конвейера, схемы его трассы, условий размещения устройства и других условий.  Длина хода барабана натяжного устройства должна быть не менее 2% от длины конвейера.  Устройства натяжные винтовые Винтовые натяжные устройства следует применять при длине конвейера не более 30-50 м, причем меньшие значения для конвейеров имеющих тяжелые условия работы (повышенная влажность и загрязненность) и ширину ленты В=1200-2000 мм.  Длина хода натяжного барабана винтового устройства должна быть 320 мм (для конвейеров длиной до 15 м); 500 мм (для конвейеров до 25 м) и 800 мм (для конвейеров длиной 25-50 м).  Типоразмер винтового натяжного устройства в приближенном методе расчета следует принимать в зависимости от типоразмера приводного барабана. Обычно, этот типоразмер на порядок меньше типоразмера приводного барабана.  Устройства натяжные грузовые Выбор типоразмера натяжной тележки и натяжной рамы следует определять по необходимому расчетному усилию грузового устройства.

 
 

Стоимость типовых конструкций можно узнать у наших менеджеров; цена на натяжные станции, изготавливаемые по техническому заданию заказчика, рассчитывается индивидуально.

 
 
 
 
 
 

Остались вопросы?

Оставьте заявку и наш менеджер свяжется с вами

 
 
Отправить
 
Нажимая кнопку «Отправить», вы принимаете условия обработки персональных данных
 

Продукция

 

О компании

 

Контакты

 
 

 

 

© 2016-2024 ООО «ТрансИнжиниринг». Все права защищены.